想了解設備資料?報價?售后?請留言,速回電
廠家直銷,留言立享本月優惠價免費提供環保政策、辦廠手續、投資預算等資料
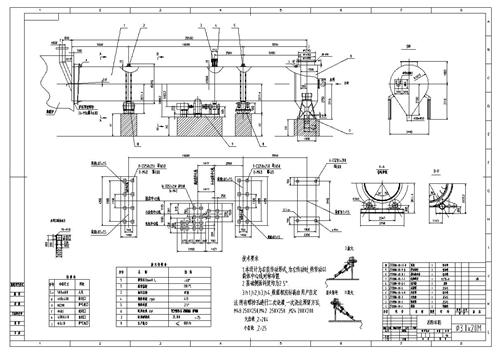
紅星機械為國內知名企業的大型回轉窯生產企業的生產圖紙,具有生產工藝簡單,對加工設備要求低,成本低等優點,是中小型機械企業生產加工的圖紙參考。我們對新設計的回轉窯圖紙舉例介紹。
下圖為2.2米回轉窯圖紙原始長度為48米,即2.2米48米回轉窯可以根據要求更改為長度38米~60米回轉窯,廣泛用于水泥窯、冶金化工窯和石灰窯。
我公司專業設計的回轉窯圖紙還有很多,下面就是我們回轉窯的結構示意圖:

回轉窯一般有2~5組托輪、1組擋輪、裝有輪帶和大齒圈的圓截面筒體在托輪上呈小角度傾斜狀滾轉。
下面為回轉窯的安裝示意圖:

由于大中型回轉窯其筒節的直徑、長度均大,幾個套裝上輪帶的筒節質量更大。因此常出現僅用一臺吊車因能力不夠而無法吊裝的情況。所以,只好采用兩臺吊車抬吊的方案或用其他方法吊裝。
如上圖所示,用兩臺移動吊車吊裝回轉窯時,因吊裝作業方法需要,兩臺吊車中應有一臺是吊起吊件可行走的履帶吊(或輪胎吊)。一般筒節可斜置于基礎一側,要盡量靠近基礎。起吊前把有輪帶的筒節套裝上輪帶。在確定兩吊車吊點時,要先計算出筒節的位置,再依據兩臺吊車的起重能力,用計算法確定吊點位置,達到按吊車能力分配負荷的目的。吊車的負荷程度應達到有關要求,即吊重應小于兩臺吊車額定起重量之和的75%,任意一臺吊車所負擔的負荷不得超過其額定起重量的80%。
.jpg)
吊索捆綁于筒節上的吊點處,兩吊車同時吊升筒節到高度略超過托輪后,一臺吊車轉桿,另一臺吊車負重前行,兩用車均應平穩操作,協同配合,吊筒節到托輪正上方,對正后放筒節于托輪上。繼而將筒節一端與已吊裝就位筒節相應端用螺栓連接。若兩臺吊車均為履帶吊或輪胎吊,而且其額定起重量之和又足夠大時,也可采用使筒節袖線平行于回轉窯縱向中心線且將其置于基礎側面、兩臺吊車均在其后的吊裝方法。吊升筒節到高出基礎頂面以后,兩臺吊車如采用邁步方法,先后分數次吊重前行,為安全和穩定計,應避免兩吊車同步吊重前行的作業方法。待筒節靠近托輪時,再吊升些,使其略超出托輪高度。兩吊車再邁步前行到筒節于托輪正上方,并落于托輪上。
我們的Φ1.9/1.6×39M回轉窯圖紙是現有新型的回轉窯圖紙,該回轉窯有節能效能高等特點在煅燒活性石灰和高嶺土、鋁酸鈣粉等領域有著極大的市場空間,比傳統的回轉窯節能30%左右,改變徑回轉窯圖紙是經過變徑回轉窯的發明人親自執筆設計繪制,并且經過上百次的總結經驗設計而成,產能達到普通回轉窯1.9米直徑的產量,能能耗降低30%左右,現有3家企業使用該圖紙生產,該直徑回轉窯一直處于熱銷狀態。
1.8米回轉窯圖紙是現在賣的較好的圖紙。這個回轉窯是紅星機械廠設計研發的干法生產回轉窯項目圖紙,完整無錯,經過數十家企業生產銷售產品。成熟穩定,是不可多的的節約成本,效能高節能的Φ1.8×30M回轉窯圖紙。
想了解設備資料?報價?售后?請留言,速回電
廠家直銷,留言立享本月優惠價免費提供環保政策、辦廠手續、投資預算等資料
3分鐘前 高先生:時產200噸制砂機報個價,處理鵝卵石
8分鐘前 李先生:移動式破碎機怎么解決粉塵問題?
13分鐘前 徐女士:需要制砂機,南寧能看制砂現場嗎?
16分鐘前 程先生:破碎生產線出個方案及報價,有什么售后服務?
22分鐘前 鄭女士:想了解時產500噸錘破,加工石灰石
31分鐘前 吳先生:成套石頭破碎設備有嗎?給個詳細產品資料
36分鐘前 羅先生:每小時100噸左右的鄂破和反擊破,推薦下型號
42分鐘前 梁先生:膨潤土磨到200目,用什么磨粉設備?
提交留言我們會第一時間回復您!
要想對稀土進行合理加工,首先需要使用回轉窯對其進行煅燒,煅燒出來的物料的使用效果更好、應用更廣泛。目前市面上生產回轉窯設備的廠家非常多,尤其是在河南省,那河南稀土回轉窯價格是多少呢?貴不貴呢?下面我們就這些問題進行具體分析。
2017-01-05鋁礬土主要成分為氧化鋁,通常呈白灰色。鋁礬土工業用途廣泛,利用價值高,主要用來煉鋁和制造耐火材料等。鋁礬土工業加工使用鋁礬土回轉窯進行焙燒作業,焙燒出來的物料使之能夠更加有利于以下工作的開展。
2016-11-29鈦白粉回轉窯是對鈦白粉實現煅燒工藝的主要設備,河南紅星機器(以下簡稱紅星廠家)對鈦白粉有著深入的研究,因此紅星廠家的鈦白粉回轉窯設備功能、優勢、特點才會更多、更具體,該設備經過精心的研究具有很多優勢。
2016-09-23硅藻土回轉窯是對硅藻土進行煅燒的重要設備,它是依據其性質研制而成的,在河南銷量很廣,而且其硅藻土回轉窯廠家眾多,由于廠家的增多,其硅藻土回轉窯價格是行業內較低的,其具體情況請看下文的詳解。
2016-09-19碳素回轉窯是針對碳素原料所生產的一款優質設備,其結構先進、質量可靠、性能優勢突出,對碳素有著很好的煅燒效果,具有很強的專業性和針對性。隨著碳素工業用途不斷擴大,對該設備需求量也日益增多,市場上的碳素回轉窯廠家也是數不勝數、質量參差不齊、價格差異較大,那么河南碳素回轉窯價格是多少呢?下面將為大家簡單介紹。
2016-09-05某石灰石礦擁有9座煅燒窯,其中兩座占總產量40%的回轉窯在投產以來一直出現各種問題,需不斷的開展檢修工作,設備運行的穩定性較差,嚴重影響生產進度。于是該廠對存在的問題進行了分析,并積極采取了有效措施,設備運行狀況大為改善。
2016-01-05